
All Care Medical
In Progress
Commercial
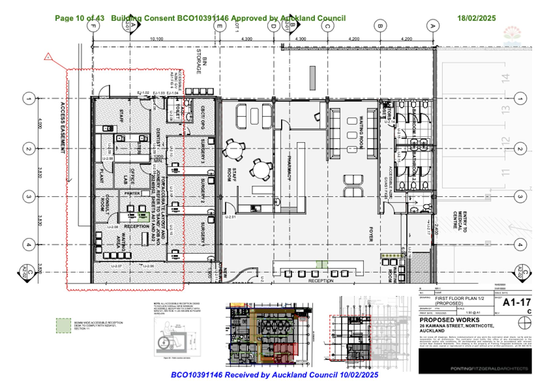
Brand New Northcote Medical & Healthcare Precinct
Our latest commercial development in Northcote, just around the corner from our head office, has transformed into a state of the art medical centre with a range of healthcare tenancies including well established All Care Family Medical. We had modernised the building during Stage One of the project, upgrading the exterior facade with solid plaster and creating a high end industrial interior. The project pivoted to meet the fit out requirements of the medical centre with the full project team including architects, engineers, interior design consultants working together with the build team to bring the vision to completion. We are proud to see this solid, character-filled building repurposed to support the community’s health and wellbeing.
Project Credits
- Architecture :: Ponting Fitzgerald Architecture
- Cabinetry :: Awesome Kitchens
- Electrical :: Arkham Electrical
- Plumbing :: Steel Plumbing